Skip to Content
会议
会议室详情
离骚厅 II
会议室详情
会议服务
庆典
索取会议资讯
您正在查看:
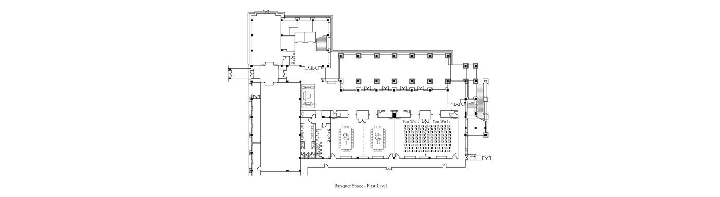
会议室概况
平面图
会议室概况
平面图
会议室概况
规模
1087 平方英尺 | 101 平方米
会议室规格
38 x 26 英尺 | 12 x 8 仪表
水晶灯高度
2 仪表 | 7 英尺
座位容量
10人宴会桌
72
招待会
100
会议
34
课桌式
60
U型
30
剧院式
90